L’immobilière d’entreprise vous propose à la vente ce bien situé à Cesson-Sévigné, d’une surface de 2 170 m².
Implanté en cur de la Z.I Sud-Est, cet ensemble immobilier bénéficie d’un environnement tertiaire et d’activités particulièrement dynamique, au sein d’un secteur reconnu de la métropole rennaise.
Édifié sur une parcelle foncière de 4 125 m², le bâtiment développe :
- 577 m² de surface de plancher en sous-sol,
- 1 148 m² en rez-de-chaussée (surfaces utiles brutes : 930 m²)
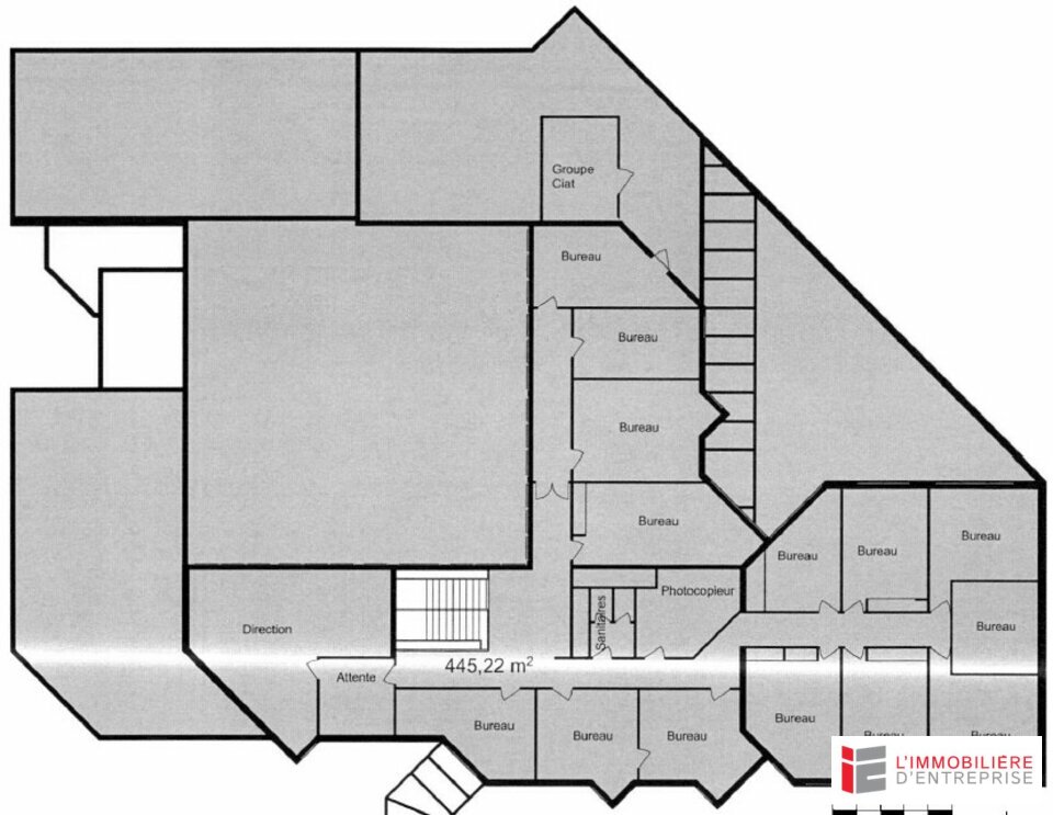
- 445 m² au R+1 (surfaces utiles brutes : 395 m²)
l’immeuble est en très bon état, offre des espaces fonctionnels et bien répartis; et propose des bureaux cloisonnés et lumineux ainsi que des espaces de circulation confortables, adaptés à une activité tertiaire, un centre de formation, un siège d’entreprise ou toute structure nécessitant des capacités de stockage complémentaires en sous-sol.
Le site dispose de 37 places de stationnement, et un accès direct à un arrêt de bus au niveau de l’entrée du site, facilitant l’accès des collaborateurs et visiteurs.
- Localisation : Z.I Sud-Est, CESSON-SÉVIGNÉ
- Surface : 2 170 m²
- Disponibilité : Immédiate
DPE En cours

