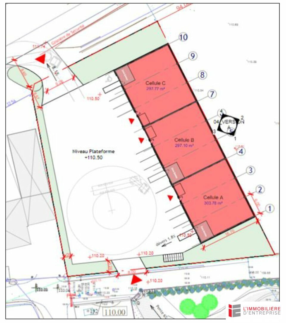
L’Immobilière d’Entreprise vous propose à la vente une cellule d’activité d’une superficie de 330 m², située au sein d’un bâtiment neuf implanté à LA MÉZIÈRE, dans un secteur dynamique, adapté aux besoins des entreprises locales et régionales.
Le local est livré brut de béton, avec réseaux et fluides en attente, ce qui permet une liberté totale d’aménagement en fonction de votre activité. Cette cellule conviendra particulièrement à des activités artisanales, industrielles légères ou de stockage, grâce à sa configuration modulable et à ses prestations techniques récentes.
Sa situation, à proximité immédiate des axes routiers principaux, garantit une excellente accessibilité pour vos équipes, vos clients et vos partenaires logistiques.
Localisation : LA MÉZIÈRE
Surface : 330 m²
DPE En cours

